This floorplan is presented on CadmiumCD's eventScribe Website platform.

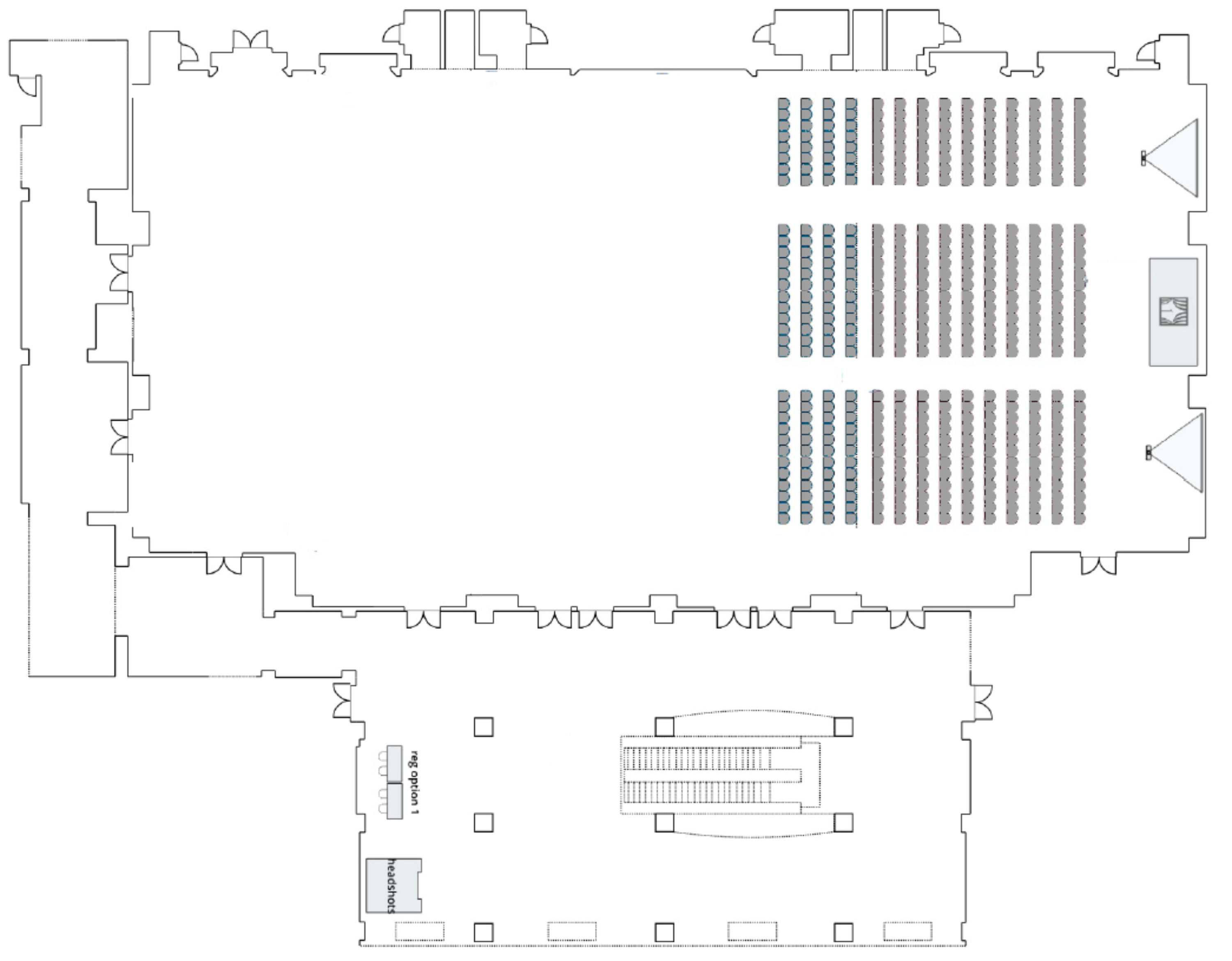
2026 MGMA Operations Conference

Westin Charlotte, Charlotte, North Carolina

April 12 – 14, 2026 (Sunday – Tuesday)

floor-plan